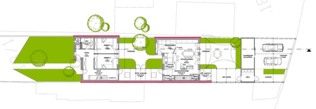
wohnhaus hochmeister


ORT: Pillichsdorf/NÖ
STATUS: Fertigstellung 2011
OBJEKTTYP: Wohnhaus
NUTZFLÄCHE: 190 m2
KONSTRUKTION: Massivbau mit wärmegedämmtem Plattendach
ERRICHTUNGSKOSTEN: 415.000 Euro
PROJEKTLEITUNG: Ing. Gerhard Nödl
projektePlanungskonzepte.shtml
bis 2017 atelier für naturnahes bauen deubner : ab 2015 übergabe des ateliers an deubner lopez zt og : tel.: +43 650 5542485 :