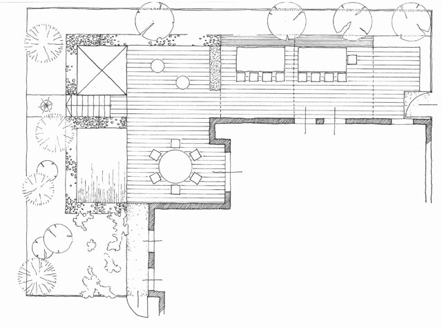
gartengestaltung grinzinger allee


ORT: 1190 Wien
STATUS: Fertigstellung März 2011
OBJEKTTYP: Terrassierung des Geländes, Gartengestaltung, Holzterrasse und Möblierung
NUTZFLÄCHE: 172,8 m2
ERRICHTUNGSKOSTEN: 33.000 Euro
PROJEKTLEITUNG: DI Magnus Deubner
projektePlanungskonzepte.shtml
bis 2017 atelier für naturnahes bauen deubner : ab 2015 übergabe des ateliers an deubner lopez zt og : tel.: +43 650 5542485 :