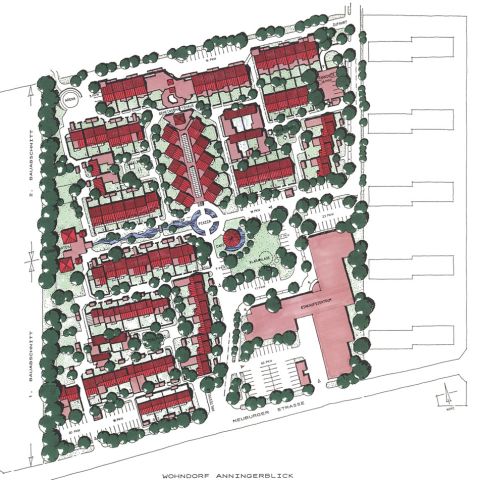
wohndorf anningerblick


ORT: Guntramsdorf/NÖ
STATUS: Fertigstellung 1994
OBJEKTTYP:Wohnhausanlage
NUTZFLÄCHE: 4.528 m2
GEMEINSCHAFTSRÄUME: -
KONSTRUKTION: Massiv-/Holzbauweise
ERRICHTUNGSKOSTEN: 72,5 Mio. ATS
(5 Mio. Euro)

PROJEKTLEITUNG: Mag. Arch. Ing. Helmut Deubner, Ing. Ewald Kunst, DI Heinrich Schuller


Print

ENTWURFSKONZEPT:


Geplant war die Errichtung von 130 Reihenhäusern und Wohnungen in verdichteter Flachbauweise. Ökologische und energetische Prinzipien sollten in einem Gesamtkonzept exemplarisch dargestellt werden. Das Gebiet wurde in drei Nachbarschaftseinheiten zu je ca. 43 Wohneinheiten geteilt, die jeweils über einen kleinen Gemeinschaftsplatz mit Spielmöglichkeiten verfügen. Das Zentrum bildet eine quadratische, von Bäumen eingefasste Piazza nach italienischem Vorbild. Ein Cafe sollte den imaginären Mittelpunkt der Anlage darstellen, und der sehr gemischten Struktur in diesem Ortsteil eine soziale Mitte geben. Außerdem ist ein Feuchtbiotop geplant, das sich von einer Quelle am Westrand bis zum Cafe erstreckt.

Die Erschließung der Siedlung erfolgt fußläufig, die PKW-Stellplätze befinden sich am Siedlungsrand, was vorallem für die Kinder in der Siedlung sehr wichtig ist. Bereits im ersten Bauabschnitt reicht das Wohnungsangebot von Singlewohnungen mit 50m² Wohnfläche und einer Dachterasse, über mittlere Reihen- und Atriumhäuser mit ca. 80 - 90m² Nutzfläche und eigenem Gartenhof, bis zu großen Reihenhäusern mit Einliegerwohnung. Alle Häuser haben einen eigenen Vorgarten auf der Nordseite, den Garten auf der Süd-seite, eine Pergola und einen eigenen Gartenschuppen. Auf die Unterkellerung wurde aufgrund der schwierigen Bodenverhältnisse großteils verzichtet.

Die Häuser öffnen sich mit ihren Pultdächern zur Sonne, um ein Maximum an Wohnqualität zu erreichen. Die Flachdächer werden begrünt. Der Gartenhof ist die natürliche Erweiterung des Wohnraumes. Durch die konsequente Verwendung von geschlossenen Holzzäunen gelingt es, die Gärten vor unerwünschten Einblicken zu bewahren, und so ein Maximum an Privatsphäre in einem dicht verbauten Gebiet zu schaffen.

ÖKOLOGISCHES KONZEPT


Bis auf wenige Ausnahmen ist es gelungen, nur wiederverwertbare und unbedenkliche Materialien einzusetzen. Ziegelwände, Holzbalkendecken und hölzerne Dachstühle prägen den wohnlichen Charakter der Anlage. Als Bodenbeläge wurden Vollholzböden bzw. Klinkerbeläge verwendet. Für die Wärmedämmung wurde 8cm Kork an der Fassade und 20cm Steinwolle (vorgesehen war Zellulose) im Dach verwendet. Für die WC-Spülung und die Gartenbewässerung dient Regenwasser aus den unterirdischen Zisternen. Für die Holzanstriche innen und außen kamen ausschließlich Naturharzfarben zum Einsatz.

ENERGETISCHES KONZEPT


Eine Reihe von energiesparenden und -gewinnenden Maßnahmen konnte in dieser Anlage realisiert werden:
  • Berücksichtigung der gegenseitigen Verschattung durch max. dreigeschoßige Bauweise
  • Vorwiegend Südorientierung und damit maximale passive Solargewinne
  • Wintergärten für alle Reihenhäuser
  • Vorkehrungen für den Anschluß von Sonnenkollektoren
  • Beheizung mit lambda-gesteuerten Gas-Kondensationsthermen
  • Wärmedämmstandard 30% über Bauordnung
  • Wärmeschutzverglasung bei allen Fenstern und Wintergärten
  • Warmluftklappen bringen die warme Luft des Wintergartens in die OG-Räume


OBJEKTDATEN:


Auftraggeber: S-Wohnbau GesmbH.
Planung und Projektleitung: Mag.Arch.Ing. Helmut Deubner
Örtliche Bauaufsicht: DI. H. Schuller

Reine Baukosten inkl. Aussenanlagen netto: öS 16.000,-/m² NFL.
Baunebenkosten netto: öS 2.500,-/m² NFL.
Herstellungskosten brutto: öS 22.200,-/m² NFL.
Verkaufskosten inkl. Grundanteil: öS 28.000,-/m² NFL

Grundstücksfläche: 12.280m²
Verbaute Fläche: 3.416m²
Geschoßflächenzahl brutto: 0,46
Bruttogeschoßfläche: 5.660m²
Wohnnutzfläche: 4.528m²
projektePlanungskonzepte.shtml
bis 2017 atelier für naturnahes bauen deubner : ab 2015 übergabe des ateliers an deubner lopez zt og : tel.: +43 650 5542485 :