nationalparkhaus petronell


ORT: Petronell/NÖ
STATUS: Fertigstellung 2005
OBJEKTTYP: Schulungszentrum
NUTZFLÄCHE: 336m2
KONSTRUKTION: Massiv-/Holzbauweise
ERRICHTUNGSKOSTEN: -
PROJEKTLEITUNG: Mag. Arch. Ing. Helmut Deubner, Ing. Ewald Kunst

Print

ENTWURFSKONZEPT:

Aufgabenstellung: Errichtung einer beispielhaften Feldstation für die Nationalpark-Akademie Donau-Auen des Naturhistorischen Museums. Als Forschungs- und Exkursionsstützpunkt für Arbeiten zu Lande und zu Wasser, als Kursstätte für die Naturführerausbildung („Ranger Akademie“) sowie Anlaufstelle für interessierte Auwanderer sollte das Haus auch ein Lehrstück ökologischen Bauens werden. Dabei sollte bewiesen werden, dass ein rekordverdächtig konsequentes Ökohaus den-noch nicht wie ein utopisch gestylter Fremdkörper aussehen muss, sondern im anheimelnden Formenkanon regionaler Baukultur möglich ist.

Vorgaben: „Earth Care Design“

VORGABEN:


  • Gebäuderecycling
    Umnutzen von Altbestand statt Abriss und Deponiekosten
  • Verdichteter Flachbau im Ortsverband
    Kein Bauplatz „auf der grünen Wiese“
  • Klimagerecht
    a)Regional: Kompensation heißer Sommertemperaturen und kalter Winter. Optimale Isolation und Speichermasse. Aktive und passive Solarnutzung. Leben mit den Jahreszeiten. Moskitoabwehr.
    b)Global: Beitrag zur Reduktion des CO2 Ausstoßes
  • Ortsbildbewusst und identitätsfördernd, unverwechselbar
    Synergie mit der Forderung „klimagerecht“
    Regionales Bauen kommt dem entgegen (hier: “pannonisch“).
  • Ressourcenschonung
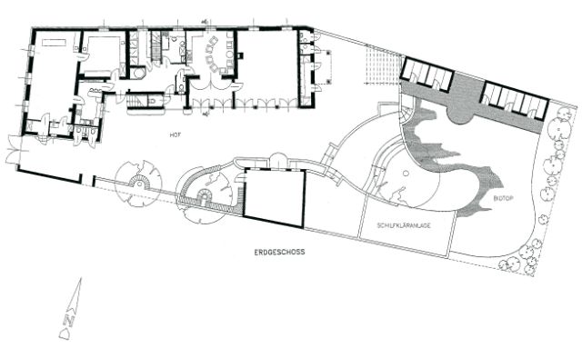
    insbes. in Bezug auf Bodenverbrauch, Energie (Dämmung, Solar, Biomasse) und Trinkwasser (Grauwasser-Recycling durch Schilfkläranlage, Regenwassernutzung und Einbau einer Humustoilette)
  • Ökologische Baustoffauswahl
    Umweltbilanzen aufgrund von Produktbiographien. Bei Importmaterialien Berücksichtigung der Umweltwirkungen in den Erzeugerländern (Positivbeispiel: Korkabsatz sichert nachhaltige Kulturlandschaften Portugals und Spaniens)

OBJEKTDATEN:


Bauherr und tw. Planer: Prof. Dr. Bernd Lötsch, NHM, Nationalpark Institut Donau-Auen
Planung und Projektleitung: Mag.Arch.Ing. Helmut Deubner, Ing. Ewald Kunst
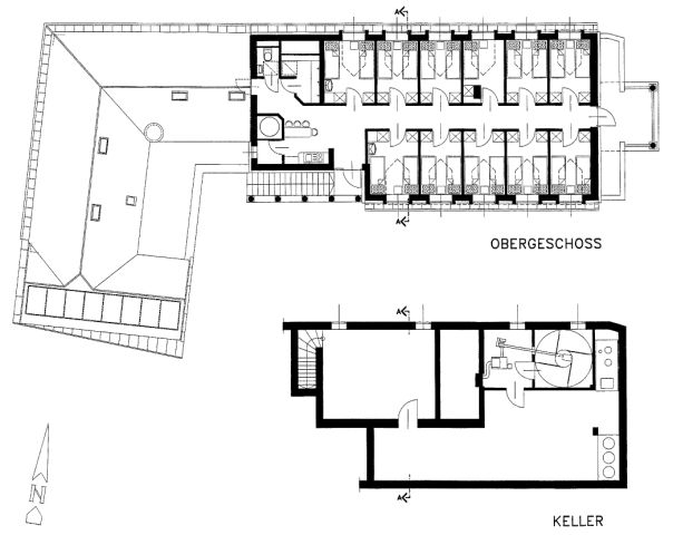
Nutzfläche Keller: 97,10m²
Nutzfläche Erdgeschoß: 222,05m²
Nutzfläche Obergeschoß: 113,61m²
projektePlanungskonzepte.shtml
bis 2017 atelier für naturnahes bauen deubner : ab 2015 übergabe des ateliers an deubner lopez zt og : tel.: +43 650 5542485 :